Beschrijving

Ben je op zoek naar een ruime en zonnige woning met grote garage waar je echt jouw eigen stempel op kunt drukken?
Kom dan eens kijken bij de Brahmsstraat 10 in Zwolle: een goed gebouwd huis met veel woonoppervlakte (163 m2) en gelegen op een mooie locatie met vrij uitzicht op een plantsoen. 
Sinds 1970 is hier altijd met veel plezier gewoond door de eerste eigenaren. Nu komt dit huis vrij voor een volgende generatie om er ook weer een fijn thuis van te maken.
De woning verkeert grotendeels nog in originele staat en biedt volop mogelijkheden om naar eigen wens te moderniseren. Met vijf volwaardige slaapkamers (en de mogelijkheid voor een zesde slaapkamer), een grote garage, een diepe tuin op het zuiden en al in het bezit van een energielabel C is dit een ideale woning voor wie ruimte zoekt en graag zelf zijn of haar woonwensen wil realiseren.


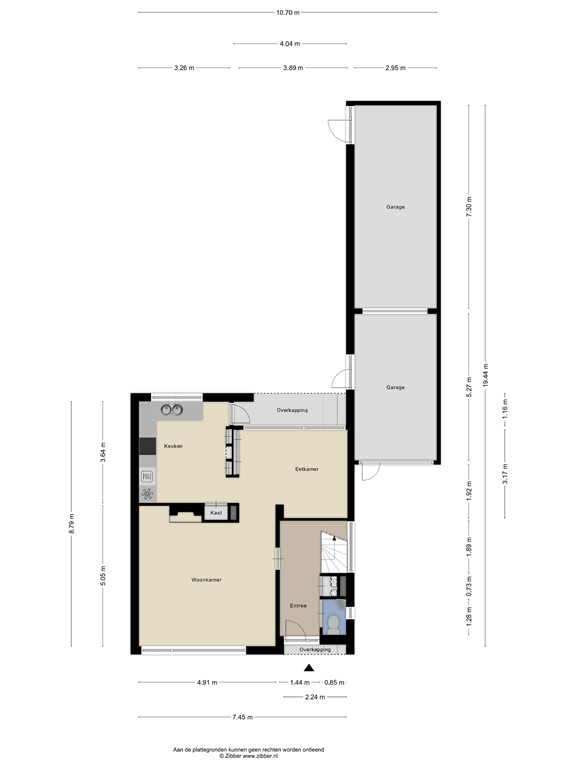
Indeling
Bij binnenkomst kom je in de hal met meterkast en toiletruimte. De woonkamer is ruim en heeft een mooie lichtinval door de grote raampartijen aan de voor- en achterzijde. Aan de voorzijde bevindt zich het zitgedeelte, vanwaar je een fraai en vrij uitzicht hebt op de grote groenvoorziening.
De woonkamer (met open haard) staat in open verbinding met het eetgedeelte, dat direct grenst aan de ruime keuken. Deze is voorzien van inbouwapparatuur. Vanuit de keuken loop je zo de zonnige achtertuin in.

Op de eerste verdieping valt gelijk de ruime overloop op. Deze overloop biedt toegang tot vier ruime slaapkamers, allemaal voorzien van praktische inbouwkasten. De twee slaapkamers aan de achterzijde hebben toegang tot het balkon. Eén slaapkamer beschikt over een wastafel.
De badkamer is uitgerust met een ligbad, toilet, wastafel en bidet.

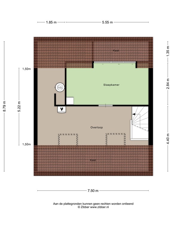
Via een vaste trap bereik je de royale zolderverdieping. Deze bestaat uit een grote slaapkamer met dakkapel en een open ruimte met twee dakramen, waar zich ook de opstelplaats van de cv-ketel en de zonneboiler bevinden. Hier zijn nog volop mogelijkheden voor uitbreiding of herindeling. Zo kan er heel eenvoudig een zesde slaapkamer worden gerealiseerd. 


Tuin
De fraai aangelegde achtertuin ligt op het zuiden en biedt volop zon en privacy. Achter in de tuin ligt een verscholen gedeelte dat eerder werd gebruikt als moestuin – een leuke verrassing voor wie graag buiten bezig is.

Via de tuin bereik je de grote garage, die extra ruim is doordat de voormalige carport erbij is getrokken. Hier is voldoende plek om te klussen en er kunnen met gemak twee auto’s worden gestald. Parkeren kan daarnaast gewoon op de eigen oprit.


Bijzonderheden
De woning ligt in een rustige straat met vrij uitzicht aan de voorzijde. Op loopafstand bevinden zich de winkelcentra van zowel Holtenbroek als de Aa-landen. De Zwolse binnenstad is binnen enkele minuten per fiets bereikbaar en ook de uitvalswegen en snelweg zijn snel te bereiken. Kortom: een centrale ligging met alle voorzieningen dichtbij.
Aanvullende informatie
De woning wordt verkocht in verband met het overlijden van de eerste – en enige – bewoners. Het huis staat inmiddels leeg en is toe aan een nieuwe invulling. De zoon verkoopt de woning namens de familie en wil geïnteresseerden graag goed informeren over de bouwkundige staat en de mogelijkheden die dit huis biedt. Daarom is er begin mei een bouwkundige keuring uitgevoerd. Deze is beschikbaar via de makelaar bij serieuze belangstelling.

Ben je dus op zoek naar een ruime woning op een mooie locatie waar je je eigen ideeën en stijl volledig kunt doorvoeren? Dan is dit huis zeker de moeite van een bezichtiging waard.
Je bent van harte welkom om te komen kijken. Neem hiervoor contact op met Carien Makelaardij voor het maken van een afspraak.

Tot slot een bericht van de verkoper:
"Mijn ouders vertelden altijd graag waarom ze voor precies dit huis hadden gekozen: het meest groene uitzicht aan de voorkant, en de grootste achtertuin van de straat. Voor hun was dit gewoon het mooiste huis van de buurt! Wij hebben er als gezin met drie kinderen een heerlijke en zonnige jeugd gehad en het huis voelde altijd ruim. Ik gun de nieuwe bewoners eenzelfde mooie tijd in dit fijne huis".

Kenmerken