Beschrijving
Bent u op zoek naar een ruime en instapklare woning met vier slaapkamers, aangebouwde garage en carport? Wilt u graag wonen in een rustige en groene omgeving maar toch in een kindvriendelijke woonwijk vlak bij de stad Zwolle?
En vindt u het belangrijk dat uw toekomstige woning al over een energielabel A beschikt?
Kom dan eens kijken op de Tasseweg 3 in Zwolle. U bent van harte welkom voor een bezichtiging.
Deze in 2007 gebouwde woning is ontworpen met oog voor detail en de stijlkenmerken van de jaren ’30, zoals de kenmerkende grote dakoverstekken, roede-verdeling in de raampartijen en de gemetselde ‘hanenkammen’ boven de kozijnen. Met een aangebouwde garage en een carport biedt deze woning niet alleen veel woonruimte, maar ook uitstekende parkeergelegenheid op eigen terrein. Dankzij de carport (met twee dakkoepels) kunt u altijd droog naar binnen lopen, ideaal tijdens regenachtige dagen.
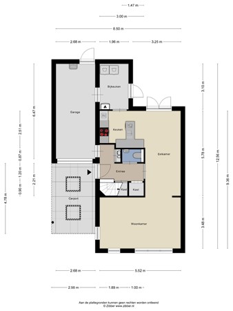
Indeling
Bij binnenkomst komt u eerst in de hal met meterkast, toiletruimte en garderobe-nis. Vervolgens komt u in de woonkamer. Het woongedeelte bevindt zich aan de voorzijde van de woning en is voorzien van grote raampartijen, waardoor er veel lichtinval is. Dit zorgt voor een aangename en zonnige sfeer. Het eetgedeelte ligt aan de achterzijde, via de openslaande deuren (2019) kunt u in de zomer heerlijk naar buiten kunt lopen en volop genieten van de riante achtertuin.
De keuken bevindt zich eveneens aan de achterzijde en is van alle gemakken voorzien. U vindt hier een inductiekookplaat met afzuigkap, een oven, een magnetron, een vaatwasser en een koelkast. Direct grenzend aan de keuken ligt de bijkeuken, waar de witgoedaansluitingen zich bevinden. Hier is ook de CV-ketel (Vaillant, 2021) geplaatst.
Vanuit de bijkeuken en de hal is de garage binnendoor te bereiken. Dit is bijzonder praktisch, want zo hoeft u nooit buitenom naar de garage te gaan. De garage is voorzien van een kleine spoelbak en heeft een directe doorgang naar de achtertuin.
Op de eerste verdieping valt direct de ruime overloop op met veel daglicht. Deze overloop biedt toegang tot drie slaapkamers en de badkamer. De slaapkamers zijn allemaal voorzien van inbouwkasten en de ramen hebben horren. De royale badkamer heeft een hoekbad, twee wastafels, een douchecabine en een hangtoilet.
De tweede verdieping is in 2018 gerenoveerd. Via de overloop komt u in een grote (vierde) slaapkamer en een aangrenzende badkamer. Deze moderne badkamer beschikt over een douchecabine, wastafel en toilet.
De slaapkamer is erg ruim mede door de aanwezigheid van de twee grote dakkapellen aan beide kanten. Daarnaast is er een praktische walk-in closet en veel extra bergruimte achter de knieschotten. Achter éen van deze ruimtes bevindt zich de unit voor de mechanische ventilatie. Alle ramen zijn hier voorzien van horren en screens en er is tevens een airco geplaatst.
Tuin
De woning beschikt over een fraai aangelegde achtertuin met diverse terrassen en borders. Dankzij de toevoeging van een extra perceel, is de achtertuin lekker ruim en kunt u hier genieten van rust en privacy. In een hoek van de tuin en niet direct in het zicht vanuit de woning staat een tuinhuis met overkapping.
Bijzonderheden
Windesheim:
Windesheim is een klein en sfeervol buurtschap dat deel uitmaakt van de gemeente Zwolle, gelegen ten zuiden van de stad. Het staat bekend om zijn landelijke karakter, historische gebouwen en groene omgeving. Windesheim ligt dicht bij de IJssel en biedt een prachtig buitengebied met uitgestrekte weilanden en karakteristieke boerderijen.
Wat Windesheim extra bijzonder maakt, is de rijke historie. Het dorp was ooit de thuisbasis van het bekende klooster Windesheim, dat in de 14e eeuw werd gesticht. Hoewel het klooster zelf grotendeels verdwenen is, zijn er nog sporen van deze geschiedenis terug te vinden in de omgeving. De prachtige kerk is gebouwd op of nabij de plek waar ooit een deel van het kloostercomplex stond. De Windesheimer molen is eveneens een mooi stukje cultureel erfgoed in Windesheim, een prachtige achtkantige stellingmolen die eeuwenlang heeft gediend als korenmolen.
Tegenwoordig is Windesheim een fijne plek om te wonen voor mensen die rust en ruimte zoeken, maar toch graag dichtbij Zwolle willen zijn. Dorpsvoorzieningen zoals een basisschool, kinderopvang en sportverenigingen zijn aanwezig. Door de ligging vlak bij de N337 en de A28 is de stad snel en gemakkelijk bereikbaar.
De combinatie van historische charme, een rustige en groene leefomgeving en de nabijheid van Zwolle maakt Windesheim een aantrekkelijke plek om te wonen!
Samengevat:
- Twee onder éen-kap woning met karakteristieke jaren '30-stijl?
- Woonkamer met veel lichtinval?
- Eetkamer met openslaande deuren naar de achtertuin?
- Moderne keuken met inductiekookplaat, oven, magnetron, vaatwasser en koelkast?
- Aangebouwde garage met binnendoorgang en carport
- Vier ruime slaapkamers met veel kastruimte
- Twee complete badkamers, waarvan één uit 2018?
- Grote achtertuin met veel privacy
- Energielabel A (geldig tot 15 januari 2035)
- Rustige buurt met het gevoel van buitenaf wonen, maar toch dichtbij Zwolle
Welkom!
Bent u ook zo enthousiast over deze bijzondere woning? U bent van harte welkom om een keer te komen kijken en kunt daarvoor een afspraak maken met Carien Makelaardij.
Tijdelijke aanvulling:?
Van 10 t/m 23 maart vindt er groot onderhoud plaats aan de N337. In deze periode is de woning bereikbaar via omleidingen, wat dus tijdelijk zorgt voor een langere reistijd. Om deze reden zullen de bezichtigingen plaatsvinden vanaf maandag 24 maart.