Beschrijving

Wilt u ook graag wonen in het mooie en groene Berkum? En bent u op zoek naar een ruime tussenwoning met vrijstaande berging èn garage? 
Kom dan eens kijken op de Kerkweg 52! Deze woning is aan de achterzijde over de gehele breedte uitgebouwd en telt vier ruime slaapkamers. De woning beschikt over energielabel B. 


Indeling
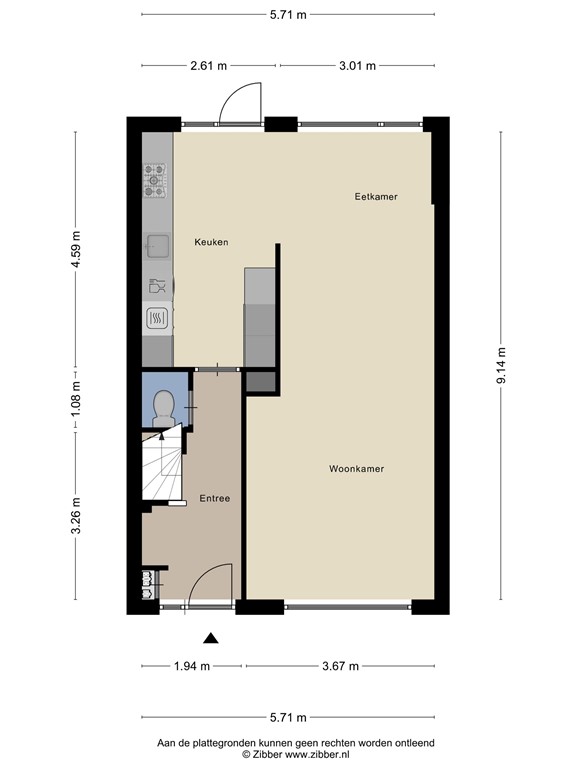
In de hal bevindt zich de meterkast, de garderoberuimte en de toiletruimte. Vervolgens loopt u door naar de keuken en de woonkamer. Omdat de begane grond aan de achterzijde is uitgebouwd, treft u een grote keuken en woonkamer aan. De keuken is voorzien van veel kasten en inbouwapparatuur zoals een combi-oven/magnetron, een vaatwasser, een koelkast en een vijf-pits gasfornuis met afzuigkap. De woonkamer heeft een eetgedeelte en een zitgedeelte. Het zitgedeelte bevindt zich aan de voorzijde en vanaf hier heeft u vrij uitzicht op de voortuin en straat. Vanaf het eetgedeelte kijkt u mooi uit op de zorgvuldig aangelegde achtertuin. Het elektrische zonnescherm zorgt hier voor een aangenaam comfort tijdens de zonnige zomerdagen.  

De eerste verdieping heeft een overloop, drie slaapkamers en een badkamer met toilet, douchecabine, wastafelmeubel en een designradiator. Prettig in deze ruimte is ook de aanwezigheid van een raam zodat hier goed geventileerd kan worden. 
De drie slaapkamers beschikken allen over een radiator en dubbele beglazing. De twee slaapkamers aan de achterzijde (zuidzijde) zijn voorzien van elektrische sunscreens. 

De tweede verdieping is te bereiken via een vaste trap en heeft een voorzolder en een slaapkamer. Op de voorzolder (met klein dakraam) bevinden zich de witgoedaansluitingen en de CV-ketel (Vaillant, 2017). Ook is hier sprake van veel bergruimte. De slaapkamer is erg ruim omdat er aan de achterzijde een groot dakkapel is geplaatst zodat er veel extra ruimte is gerealiseerd. Daarnaast is deze slaapkamer ook erg licht door de aanwezigheid van een dakraam. De twee dakramen op deze verdieping zijn in augustus 2023 geplaatst. 


Tuin
De woning ligt op een perceel van 180 m2. Op een achtergelegen perceel (20 m2) bevindt zich de eigen garage. Zowel de voor- als de achtertuin zijn fraai aangelegd en voorzien van kleurrijke struiken en mooie haagjes. In de op het zuiden gelegen achtertuin staat een vrijstaande stenen berging en de tuin wordt fraai omsloten door houten schuttingen een poort. Hier kunt u dus lekker genieten van de zon en van uw privacy. 

De Kerkweg is een mooie brede weg met veel bomen in het midden van Berkum. Berkum is een geliefde wijk ten noordoosten van de binnenstad van Zwolle en is goed te bereiken via diverse uitvalswegen en de A-28. Het wordt ook wel het groene tuindorp genoemd. De wijk kenmerkt zich door het dorpse karakter met veel groenvoorzieningen. Er is een klein winkelcentrum met onder andere een supermarkt, drogist, slijterij, snackbar en een bakker. Ook zijn er twee basisscholen, een peuterspeelzaal en kinderdagverblijf, een wijkcentrum, twee kerken en diverse sportvoorzieningen. Omdat Berkum tegen het buitengebied aanligt, kun je er heerlijk door de weilanden of de bossen wandelen of loop je lekker over de dijk langs de Vecht. En wil je graag naar de binnenstad van Zwolle met haar veel leuke restaurants en winkels, dan is het slechts een tiental minuten fietsen. 

Bijzonderheden

De ouders van de verkopers hebben de woning bijna 40 jaar geleden gekocht en hebben er altijd met heel veel plezier gewoond. Nu is het tijd voor nieuwe bewoners die er hopelijk ook weer een fijn thuis van zullen maken. 

Omdat de verkopers (de kinderen) niet zelf in het huis hebben gewoond, zal er een niet-zelfbewoningsclausule in de koopakte worden opgenomen. Om potentiële kopers toch zo veel mogelijk te voorzien van informatie over de woning, is er in mei van dit jaar een professionele bouwkundige keuring uitgevoerd. Dit rapport wordt ter beschikking gesteld aan iedere potentiële koper die deze woning komt bezichtigen.

Bent u ook enthousiast geworden over deze woning? U bent van harte welkom om te komen kijken en kunt daarvoor een afspraak maken met Carien Makelaardij.

Kenmerken