Beschrijving

Altijd al gedroomd van een woning met veel rust en ruimte en tegelijkertijd vlak bij de binnenstad van het prachtige Zwolle?
Dan is dit uw kans! Aan het schilderachtige Kiekeboslaantje – misschien wel het mooiste laantje van Zwolle – staat deze vrijstaande semi-bungalow op een fantastisch perceel van 3.351 m².
Gelegen in het geliefde buurtschap Veldhoek, omringd door weilanden, oude bomen en karakteristieke woningen, woont u hier heerlijk vrij. En binnen 10 fietsminuten staat u al in het centrum van Zwolle!

De woning is gebouwd in 1974 en in 2011 grondig gemoderniseerd en uitgebouwd. Het resultaat is een comfortabele, goed onderhouden woning met veel leef- én hobbyruimte. Met onder andere een slaapkamer en badkamer op de begane grond is het huis bovendien levensloopbestendig. 
Wat deze woning extra aantrekkelijk maakt, is dat het niet alleen ruim en vrij ligt, maar ook energiezuinig is. De woning beschikt over energielabel A, is vrijwel volledig voorzien van HR++ -beglazing en heeft 28 zonnepanelen. Zo geniet u niet alleen van een groene leefomgeving, maar ook van lage energielasten.


Indeling
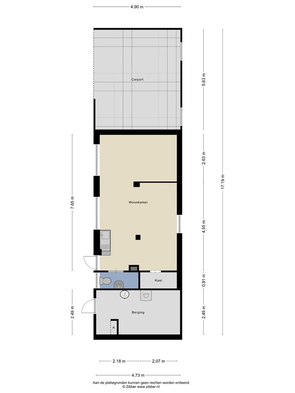
Via de officiële entree komt u binnen in de centrale hal, van waaruit u toegang heeft tot de woonkamer, de slaapkamer en de badkamer. 
De woonkamer is ruim van opzet en is altijd gebruikt als multifunctionele leefruimte met een comfortabele zithoek, een apart eetgedeelte en een praktische werkplek in een nis.
In het hart van de ruimte zorgt de unieke houtkachel (Koppe Caron Aqua) voor warmte én sfeer. 
Dubbele openslaande deuren aan de achterzijde brengen u naar de grootse achtertuin.
De keuken staat in open verbinding met de woonkamer (beide ruimtes zijn voorzien van vloerverwarming), maar vormt toch een eigen, gezellige ruimte. Hier vindt u moderne inbouwapparatuur zoals een quooker, koffiemachine, combi-ovens, vaatwasser en koelkast. Dankzij de ruime opzet is er ook plaats voor een eethoek, waar u gemakkelijk met zes personen kunt zitten. Ook vanuit de keuken loopt u zo de tuin in.
Aansluitend aan de keuken ligt de bijkeuken, die fungeert als praktische ‘achterom’ van de woning. Hier is een compact aanrechtmeubel met spoelbak geplaatst en vindt u een toiletruimte, de cv-opstelling (2022) en volop bergruimte.
Via de bijkeuken loopt u door naar de voormalige garage, die momenteel in gebruik is als werkruimte. Deze praktische ruimte is voorzien van witgoedaansluitingen en biedt veel kastruimte. Vanuit hier is er toegang tot een bergzolder, die in het verleden ook dienst heeft gedaan als logeerruimte.
Op de begane grond is ook een fijne slaapkamer aanwezig, die direct grenst aan een moderne badkamer met inloopdouche, wastafel en toilet. Dit maakt de woning zeer geschikt voor gelijkvloers wonen – comfortabel en met oog op de toekomst. Deze slaapkamer is vanzelfsprekend ook te gebruiken als kantoorruimte, atelier of hobbykamer.


Eerste verdieping
De eerste verdieping telt vier volwaardige slaapkamers. Aan de achterzijde is een groot dakkapel geplaatst, waarin de moderne badkamer is gerealiseerd. Deze is voorzien van een inloopdouche, wastafelmeubel, toilet en designradiator. Vanuit hier heeft u een prachtig uitzicht over de achtertuin en het omliggende groen. Op de overloop bevindt zich een luik dat toegang verleent tot de bergzolder.

Tuin
Rondom de woning ligt een zee aan ruimte. 
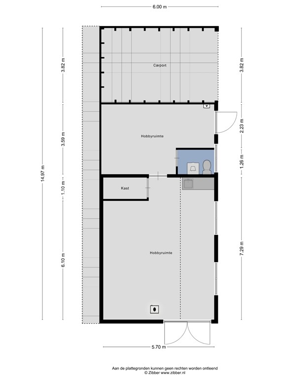
Aan de achterzijde bevindt zich een grote schuur met een carport, twee royale hobbyruimtes en een eigen toilet. Op het dak van deze schuur liggen de 28 zonnepanelen die bijdragen aan de energiezuinigheid van het geheel. Via openslaande deuren komt u op het uitgestrekte grasveld naast de woning – een ideale plek voor spelende kinderen, het houden van dieren of om gewoon in alle rust van het buitenleven te genieten.
Rechts van de woning staat een tweede bijgebouw. Deze is oud maar wel voorzien van een keukentje, toiletruimte, gevelkachel en een boiler voor het warme water. Ongeveer tien jaar geleden is er een carport aangebouwd zodat u nu uw auto comfortabel en droog kunt parkeren. 
Onder de royale terrasoverkapping aan de achterzijde van het perceel zit u heerlijk beschut. Vanaf deze plek kijkt u prachtig uit over de diepe tuin en het huis zelf – een fijne plek om het hele jaar door te genieten van rust, ruimte en natuur. 
Daarnaast zijn er nog twee tuinhuisjes op het perceel aanwezig.

Het perceel is bijzonder veelzijdig. Aan beide zijden van het huis en achter in de tuin liggen brede stroken grasland en groen, met volop mogelijkheden voor eigen invulling. Er is ruimte voor het houden van dieren – momenteel lopen er af en toe schapen – maar ook voor het aanleggen van een moestuin, boomgaard of fraaie siertuin. Helemaal achter op het perceel bevinden zich diverse speeltoestellen waardoor het jarenlang een speelparadijs is geweest voor kinderen en kleinkinderen. 


Bijzonderheden
Deze locatie biedt een uitstekende combinatie van rust en bereikbaarheid. 
U woont hier midden in het groen, maar met alle voorzieningen dichtbij. In de directe omgeving vindt u basisscholen, supermarkten, sportclubs en uitstekende verbindingen naar de A28 en A50.
Voor recreatie hoeft u ook niet ver van huis: het monumentale openluchtbad van Zwolle ligt op fietsafstand, net als de Wijthmenerplas, perfect voor zwemmen, wandelen of gewoon een middagje genieten aan het water. Binnen 10 minuten fietsen staat u bovendien in het levendige stadscentrum van Zwolle, met zijn gezellige terrassen, winkels, musea en station.

De eigenaren hebben hier ruim 45 jaar met veel plezier gewoond. Daarvoor was het perceel generaties lang in de familie – al meer dan een eeuw maakt deze plek deel uit van hun geschiedenis. Ze hebben het huis dan ook met liefde onderhouden en met zorg gemoderniseerd. Nu het tijd is om kleiner te gaan wonen, hopen ze dat de nieuwe eigenaren hier ook zo’n fijne toekomst zullen opbouwen.

Persoonlijke toevoeging van de eigenaren: “Wij hebben hier 45 jaar met heel veel plezier gewoond. Iemand die regelmatig bij ons op bezoek kwam, noemde het ‘een heerlijkheid’, dat was het ook voor ons. Het gaat ons aan het hart om deze mooie plek te verlaten maar om gezondheidsredenen kan het niet anders. We hopen dat de nieuwe bewoners er net zo van zullen genieten als wij altijd hebben gedaan”. 

Ziet u zichzelf hier al wonen – omringd door rust, ruimte en groen, met de stad binnen handbereik? 
U bent van harte uitgenodigd voor een bezichtiging. Neem hiervoor contact op met Carien Timmerman van Carien Makelaardij.

Kenmerken