Beschrijving

Wonen in een compleet gerenoveerd appartement, mét uitzicht over Park de Wezenlanden én op loopafstand van de historische binnenstad van Zwolle!

Aan de rand van de geliefde wijk Assendorp vind je dit instapklare appartement met balkon en externe berging. 
Het appartement ligt op de derde woonlaag en is voorzien van veel comfort. Hier geniet je dagelijks van een prachtig en vrij uitzicht over het groene Park de Wezenlanden, een unieke plek waar rust, natuur en stadsleven samenkomen.

De huidige bewoonster heeft het appartement in de afgelopen vijf jaar grondig gerenoveerd en voorzien van:
•	een luxe Bruynzeel-keuken met inbouwapparatuur;
•	een vernieuwde badkamer met hoogwaardig Villeroy & Boch-sanitair;
•	vloerverwarming;
•	een duurzame PVC-vloer;
•	strak gestuukte en geschilderde wanden en plafonds:
•	vernieuwde elektrische bedrading en verlaagde stopcontacten.


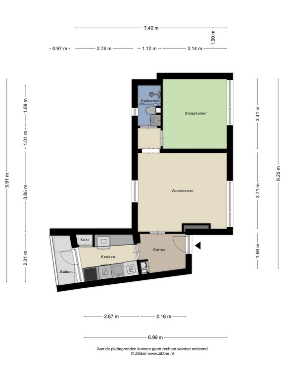
Indeling
Via de centrale entree met bellentableau en brievenbussen kom je in het trappenhuis. Het appartement bevindt zich op de derde verdieping.

Bij binnenkomst vallen direct de stijlvolle PVC-vloer en de chique zwarte deuren op, die samen zorgen voor een moderne en luxe uitstraling. 
In de ruime hal is plek voor een garderobe en vind je de meterkast.
De woonkamer is sfeervol ingericht en licht dankzij de grote raampartijen en biedt een prachtig uitzicht op het park.
Aan de achterzijde bevindt zich de luxe Bruynzeel-keuken uitgevoerd met inductiekookplaat, afzuigkap, oven, vaatwasser en koelkast met vriesvak. Hier is ook de witgoedaansluiting netjes weggewerkt. 
Via de openslaande deur kom je op het balkon. Dit balkon ligt op het zuidwesten zodat je heerlijk van de middag- en avondzon kunt genieten met uitzicht op het achterliggende pleintje.
De slaapkamer is ruim en heeft eveneens grote ramen met uitzicht op het park.
De badkamer is volledig vernieuwd en uitgevoerd met douche, wastafel en hangtoilet. Dankzij het gebruik van Villeroy & Boch-sanitair en de hoogwaardige afwerking heeft de badkamer een luxe uitstraling.

Op de begane grond bevindt zich een praktische berging, ideaal voor het stallen van fietsen en extra opslag. Vanuit hier loop je eenvoudig naar buiten met je fiets.


Omgeving:
Park de Wezenlanden is letterlijk je voortuin. Dit geliefde stadspark is de ideale plek om te wandelen, te picknicken of gewoon te ontspannen in het groen. Het park biedt volop ruimte voor sport en recreatie, maar staat ook bekend om de bijzondere evenementen die er jaarlijks plaatsvinden, waaronder het bruisende Bevrijdingsfestival Overijssel.
Het appartement ligt in de charmante wijk Assendorp. Een wijk die bekend staat om haar levendige en gemoedelijke karakter met gezellige buurtwinkels, ambachtelijke speciaalzaken en sfeervolle cafés. Tegelijkertijd ligt het op loopafstand van de historische binnenstad van Zwolle, met haar grachten, monumentale panden en uitgebreide winkel- en horecagelegenheid. Ook het treinstation en de uitvalswegen zijn dichtbij, waardoor je uitstekend verbonden bent met de rest van Nederland. Voor de deur is gratis parkeergelegenheid beschikbaar en met de directe busverbinding naar het station ben je ook zonder auto goed bereikbaar.

Bijzonderheden:
•	Het complex is recent aangewezen als gemeentelijk monument;
•	Er geldt een anti-speculatiebeding en zelfbewoningsplicht van 1 jaar;
•	De maandelijkse bijdrage aan de VvE bedraagt € 99,51 (waarvan € 90,46 voor het appartement en € 9,05 voor de berging).

Tot slot:
Ben jij op zoek naar een luxe en geheel instapklaar appartement met uitzicht op het mooie Park de Wezenlanden en op loopafstand van de binnenstad? Neem dan contact met op met Carien Makelaardij voor het maken van een bezichtiging! Je bent van harte welkom!

Kenmerken