Beschrijving

IN VERBAND MET DE VELE BEZICHTIGINGSAANVRAGEN VOOR DEZE WONING, IS HET NIET MEER MOGELIJK EEN NIEUWE BEZICHTIGING IN TE PLANNEN. MOCHT U TOCH VEEL INTERESSE HEBBEN, DAN KUNT U ONS MAILEN EN WORDT U OP DE RESERVELIJST GEPLAATST. 

Bent u op zoek naar een sfeervolle tussenwoning met maar liefst vier slaapkamers? Gaat uw voorkeur uit naar een duurzame woning (energielabel A) met lage energiekosten?
En wilt u graag wonen in een gezellige buurt met een speeltuintje voor de deur, vlakbij winkels en scholen? Kom dan eens kijken op de van der Grondenmarke 18 in Zwolle. 
Deze woning is voorzien van tien zonnepanelen (2019), een nieuwe CV-ketel (eind 2023) en ligt op loopafstand van het winkelcentrum Zwolle-Zuid. Bovendien is het nog geen kwartiertje fietsen naar het centrum van Zwolle. 


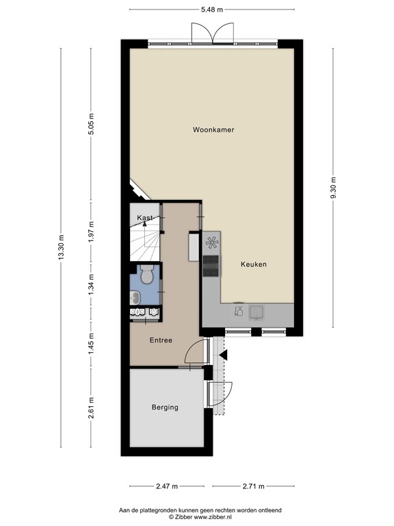
Indeling
Bij binnenkomst komt u in een ruime hal met garderobe-ruimte, een toilet, een handige voorraadkast en de meterkast.
Vervolgens komt u in de woonkamer die een eigen uitstraling heeft gekregen door een aantal aanpassingen. Er zijn een paar muurtjes verplaatst zodat de ruimte een opener karakter heeft gekregen. Daarnaast is de achtergevel vernieuwd met openslaande deuren, waardoor de mooi aangelegde achtertuin nu goed zichtbaar en toegankelijk is. De woonkamer biedt een warme en uitnodigende sfeer door de prachtige parketvloer en het gebruik van een houtkachel. 
De open keuken bevindt zich aan de voorzijde en vanaf hier heeft u een leuk uitzicht op een pleintje. De keuken is een geheel op maat gemaakte keuken en bijzonder functioneel ingericht. Het heeft een natuurstenen aanrechtblad en is voorzien van inbouwapparatuur zoals een vaatwasser, 4-pitsgasfornuis met afzuigkap, een koelkast en een combi-oven/magnetron. 
Wanneer we teruggaan naar de hal, kunnen we doorlopen naar de aangebouwde stenen berging. Deze berging heeft ook een aparte deur naar buiten. Hier kunt u dus gemakkelijk uw fietsen stallen. Er zijn handige en hoge stellingkasten geplaatst zodat hier sprake is van veel bergruimte en u uw spullen goed georganiseerd kunt houden. 


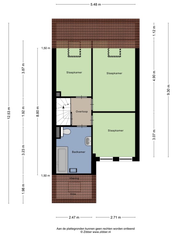
Eerste verdieping
De eerste verdieping heeft drie slaapkamers en een ruime badkamer met ligbad, toilet en wastafelmeubel. Ook bevindt zich hier de aansluiting voor de wasmachine en is er ruimte voor een wasdroger.

Tweede verdieping
De tweede verdieping is te bereiken via een vaste trap. Om geen warmte te verliezen kan deze ruimte op de overloop worden afgesloten. De tweede verdieping is nu ingericht als een slaapkamer maar kan natuurlijk ook functioneren als bijvoorbeeld een werkkamer. Het heeft een dakraam en er zijn rolbare (en dus verplaatsbare) kasten geplaatst die zorgen voor veel handige opbergruimte. Op deze verdieping is een aparte kast gemaakt voor de CV-ketel, deze ketel is nog maar een paar maanden oud (geplaatst in december 2023) en zit vanzelfsprekend nog in de garantieperiode.
Nog meer ruimte nodig? Het huis biedt mogelijkheden tot het plaatsen van dakkapellen. 


Tuin
De woning ligt op een perceel van 145 m2. De huidige eigenaar heeft destijds een extra strookje grond kunnen kopen zodat men nu niet meer achter de woning langs kan lopen. Wel is de achtertuin nog toegankelijk voor bijvoorbeeld de containers. 
Er is een mooie overkapping in de achtertuin gebouwd die voorzien is van sfeervolle verlichting. Vanaf hier kijkt u mooi uit op de charmante achtergevel van het huis en op de gezellige achtertuin. 
U kunt overigens ook heerlijk aan de voorzijde van de woning zitten en vanaf hier uitkijken op het pleintje. Omdat er een pergola is geplaatst met een prachtig bloeiende blauwe regen en andere kleurrijke klimplanten, kunt u ook hier genieten van veel privacy. 


Bijzonderheden
Tot slot.
o	In februari 2024 heeft het buitenschilderwerk plaatsgevonden van de achtergevel van de woonkamer en de ramen aan de voorzijde (keuken en eerste verdieping).
o	De woning is voorzien van dubbele beglazing met uitzondering van het raam in de berging en de slaapkamer aan de voorzijde.
o	Zoals al eerder vermeld, zijn er in 2019 tien zonnepanelen op het dak geplaatst. Deze panelen dragen niet alleen bij aan een duurzamere levensstijl, maar zorgen ook voor lagere energiekosten. Mede dankzij deze zonnepanelen, beschikt de woning over een energielabel A.

Kortom, een sfeervolle, goed onderhouden en duurzame woning gelegen op een fijne locatie. 

Bent u ook enthousiast geworden over deze woning? 
U bent van harte welkom om te komen kijken en kunt daarvoor een afspraak maken met Carien Makelaardij.

Kenmerken