Beschrijving
Op een prachtige locatie in de Wipstrik staat deze karakteristieke woning met een opvallend brede frontgevel van maar liefst 8,5 meter. Dankzij de extra breedte biedt de woning op alle drie de woonlagen aan de voorzijde meer leefruimte dan veel andere woningen in de straat. De voorgevel is eind 2025 door een professioneel schildersbedrijf geschilderd, wat de verzorgde en goed onderhouden uitstraling van de woning onderstreept. De woning beschikt over een energielabel A en combineert daarmee comfort en duurzaamheid met ruimte en sfeer. Met vijf volwaardige slaapkamers en 146 m2 woonoppervlakte (inclusief berging) is dit een heerlijk en comfortabel gezinshuis.
De brede voortuin vormt een prettige overgang van straat naar huis. Leibomen zorgen voor groen, beschutting en privacy. Een praktisch detail is de aanwezigheid van twee entrees: één naar het woonhuis en een tweede deur naar de inpandige berging. Ideaal voor fietsen, kinderwagens, jassen en alles wat je graag uit het zicht houdt, maar wel direct bij de hand wilt hebben.
Binnen word je ontvangen in een hal vol karakter. Glas-in-loodramen en een prachtige granito vloer zetten meteen de toon. De woonkamer voelt licht en ruim, mede dankzij het hoge plafond en de erker aan de voorzijde.
In 2021 is de keuken volledig vernieuwd en zijn de dubbele tuindeuren teruggebracht. Hierdoor is een prettige, open leefruimte ontstaan met veel daglicht en een fijne verbinding met de tuin.
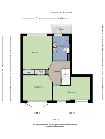
Ook op de verdiepingen laat deze woning haar ruimte zien. Op de eerste verdieping bevinden zich drie goed bemeten slaapkamers met een prettige lichtinval en diverse vaste kasten. De badkamer is in 2024 volledig vernieuwd en uitgevoerd in een moderne, tijdloze stijl.
De tweede verdieping is opvallend royaal en beschikt over een ruime voorzolder en nog eens twee volwaardige slaapkamers. De extra ruimte is met name te danken aan het in 2025 geplaatste dakkapel aan de achterzijde.
Naast de brede voortuin is er een fijne achtertuin op het noordwesten. Deze achtertuin is compact, maar praktisch en sfeervol ingericht, met altijd wel een plek in de zon of schaduw. Vooral in de namiddag en avond is het hier heerlijk buiten zitten.
INDELING
Begane grond:
Voortuin, entree, hal met karakteristieke details, toegang tot de inpandige berging (ook van buiten bereikbaar), provisiekelder, meterkast en toilet met fontein. Ruime leefruimte met zitgedeelte aan de voorzijde en een eethoek met open verbinding naar de keuken. De keuken (2021) is stijlvol en tijdloos uitgevoerd en voorzien van onder andere een BORA inductiekookplaat met geïntegreerde afzuiging, vaatwasser, combi-oven/magnetron, quooker en koelkast. Via zowel de keuken als de dubbele tuindeuren is de achtertuin bereikbaar.
Eerste verdieping:
Overloop met origineel fonteintje, drie ruime slaapkamers en een in 2024 vernieuwde badkamer met inloopdouche, groot wastafelmeubel met twee spiegels, hangtoilet en toegang tot het balkon.
Tweede verdieping:
Royale voorzolder met aansluitingen voor wasmachine en droger en veel bergruimte. Twee volwaardige en sfeervolle slaapkamers, waarvan één in 2025 is vergroot door de plaatsing van een groot dakkapel aan de achterzijde. Het dakkapel is voorzien van kunststof kozijnen, rolluiken en horren. Deze slaapkamer beschikt over een eigen wastafel. In een vaste kast bevindt zich de cv-ketel (Intergas, 2005).
WONEN IN DE WIPSTRIK
De Wipstrik is een wijk met karakter en behoort tot de meest geliefde woonwijken van Zwolle. De wijk is ontstaan in de jaren ’30 en staat bekend om het groene en ruimtelijke straatbeeld en de karakteristieke woningen. Dagelijkse voorzieningen zoals een buurtsuper en meerdere basisscholen liggen op loopafstand. Stap op de fiets en binnen vijf minuten sta je in het centrum van Zwolle. Ook uitvalswegen zijn snel en eenvoudig bereikbaar.
Belangstelling voor deze woning?
U bent van harte uitgenodigd voor een bezichtiging. Neem hiervoor contact op met Carien Makelaardij.